Editor’s note: This post, originally published in February 2022, was updated in November 2025.
The Technical Committee of the Steel Framing Industry Association (SFIA) has released Version 2025.1 of the SFIA Technical Guide for Cold‐Formed Steel Framing Products or SFIA Product Technical Guide. Users should update to version 2025.1, which includes minor corrections and formatting updates.
SFIA Technical Guide for Cold‐Formed Steel
The SFIA Product Technical Guide helps architects, engineers, specification writers and contractors to comply with the latest building codes and standards. The guide is the most up-to-date cold-formed steel (CFS) framing guide available in North America. It meets the requirements of the 2024 International Building Code (IBC), the 2022 California Building Code and the 2020 Florida Building Code.
“The guide provides users with the latest load and span tables and other information for standard steel framing products,” says Don Allen, SFIA executive director. “It helps ensure that designs and installations comply with the latest codes.”

The SFIA Technical Guide for Cold-Formed Steel Framing Products, version 2025.1 (November 2025), is applicable to the 2024 IBC and to newer versions of the California and Florida buildings codes.
Guide Based on AISI S100-16/S2-20
The American Iron and Steel Institute’s AISI S100-16/S2-20, “North American Specification for the Design of Cold-Formed Steel Structural Members,” serves as the basis for the SFIA guide’s data. SFIA’s guide meets the requirements of several key building codes:
- The 2024 International Building Code (IBC)
- The 2022 California Building Code
- The 2020 Florida Building Code

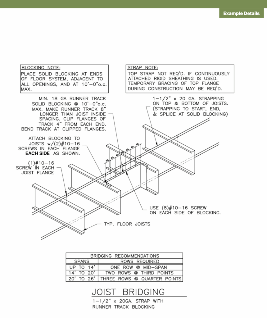
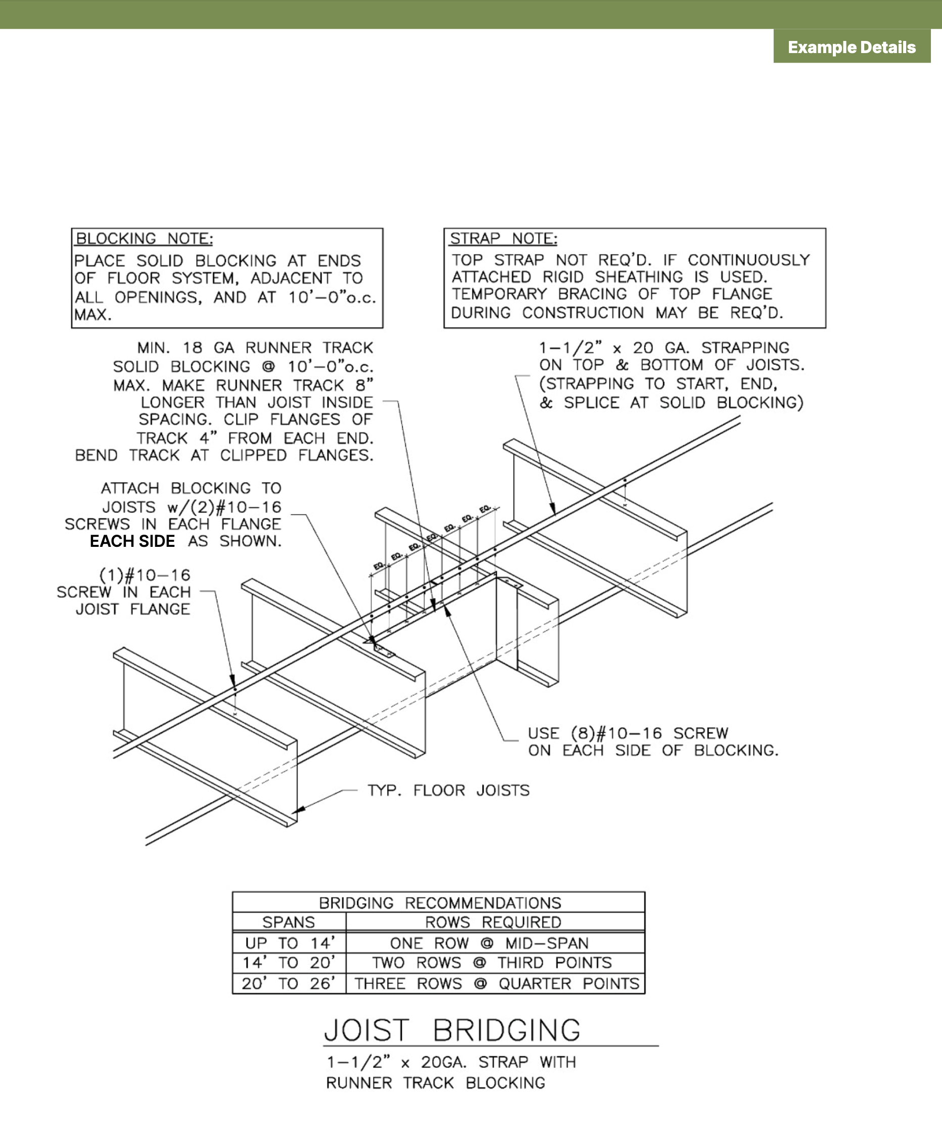
NEW: The SFIA Technical Guide for Cold-Formed Steel Framing Products, version 2025.1, includes images to illustrate points.
“We’ve updated the properties tables and the comparisons,” says Patrick Ford, SFIA technical director. “The guide is the perfect tool for engineers and others designing with cold-formed steel.”

The SFIA Technical Guide for Cold-Formed Steel Framing Products features diagrams and notes to explain typical details.
The Product Technical Guide supports the steel industry’s standard nomenclature. The AISI General Provisions, S200, Section A5.2, specifies the use of a four-part product designator. The designator identifies member depth, style, flange width and material thickness:

The Steel Framing Industry Association (SFIA) supports the nomenclature backed by the American Iron and Steel Institutes’s General Provisions, S202, section E4.
Download the SFIA Product Technical Guide free of charge from SFIA’s Technical Publications page.
Steel Framing Industry Association
The Steel Framing Industry Association (SFIA), a unique, ANSI-accredited standards development organization represents steel mills, coil coaters, stud and connector manufacturers, component fabricators, Cold-Formed Steel Engineers Institute (CFSEI) engineers, suppliers/distributors, contractors and others. The SFIA provides its members with exclusive access to technical cold-formed steel (CFS) framing services, including CFS certification, environmental product declarations, market data, technical publications, specification review services, architectural services, the Steel Framing Learning Portal, the SFIA Awards and more.
Follow SFIA’s educational programs on BuildSteel, LinkedIn, Facebook, Instagram and X.
Additional Resources
- Checklist for Architects and Engineers Writing CFS Specifications
- 4 K-12 School Design Trends that Make Use of Steel Framing
- eBook: Specifying Cold-Formed Steel Framing: A Guide for Architects and Engineers

