Steel Framing Industry Association (SFIA) member Maxan Interior Systems leveraged cold-formed steel (CFS) in the design and execution of a dynamic, free-flowing architectural exterior building canopy.
At the Westerly 2 South Tower in Etobicoke, Tridel Corporation is advancing a major mixed-use development that blends residential towers, retail and public space. The project forms part of the broader Westerly community, a large-scale urban infill effort designed to activate the surrounding neighborhood.
At street level, a sculptural canopy defines the tower’s entrance. Designed by Kirkor Architects, the free-form structure serves as more than weather protection. It creates a distinct visual identity and establishes a strong pedestrian presence through expressive form and detail. Maxan Interior Systems, a specialty interior contractor based in the Greater Toronto Area, worked on the project.
Architectural Design Detail
Maxan Interior Systems received the 2025 SFIA Industry Project and Product Honorable Mention in the Architectural Design Detail category for the Westerly 2, South Tower canopy. The SFIA Awards recognize excellence in the use of cold-formed steel (CFS) framing across design and construction. Doug Villeneuve of Maxan Interior Systems submitted the award entry.
Featured image (above): Maxan Interior Systems worked on a unique cold-formed steel (CFS) framed exterior building canopy for the Westerly 2, South Tower.

The Westerly 2, South Tower, canopy features a stud-beam system, made up of interconnected studs and tracks, which establishes a robust structural backbone.
Maxan Interior Systems’ win was announced during the 2025 SFIA Awards live ceremony and posted online. The SFIA 2025 Industry Project and Product Awards, an annual steel framing industry awards competition, focuses on CFS manufacturing and construction. Designers, manufacturers, distributors and contractors entered a variety of projects in the latest competition.
Design Quality
How did this project use CFS efficiently and what was the value engineering solution?
This innovative project employed standard metal studs and angles to create a dynamic, free-flowing architectural shape that aligned seamlessly with the architect’s vision.
MTE Consulting Engineers undertook meticulous calculations to ensure the support structure effectively transferred loads back to the foundational concrete and the underlying steel stud “rib” framework. The project features a stud-beam system, made up of interconnected studs and tracks, which establishes a robust structural backbone. This provided secure support for the ribs.
“This design not only fulfilled the aesthetic aspirations,” the award submission says, “but also adhered to engineering principles, ensuring stability and durability throughout the structure.”

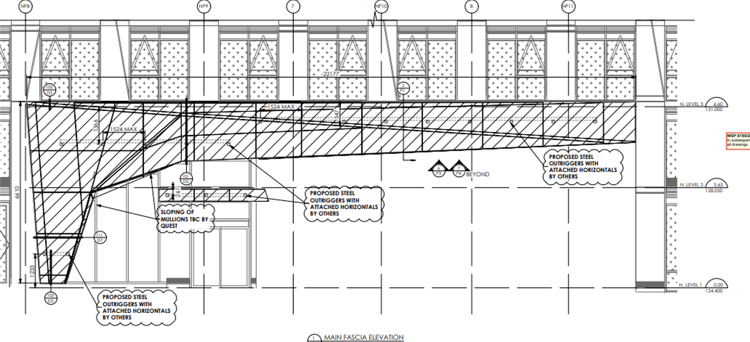
This design shows the proposed steel outrigger locations to support the canopy framing at the Westerly 2 South Tower.

The team used 3D scanning to confirm outrigger locations that would support the cold-formed steel (CFS) canopy framing at the Westerly 2 South Tower.
Installation Complexity
Did this project require special methods or conflict resolution?
The team used 3D scanning to plan and install the structure. Crews scanned the existing space before erecting the steel canopy. The Raw laser scan data captured millions of data points and generated a Point Cloud. The team used that model to design the canopy in three dimensions before installation.
The architect reviewed and approved the 3D model. The fabricator then produced metal sheet templates to define the planar regions. The team issued a series of installation packages that showed each cold-formed steel (CFS) stud layout, angle and location in 3D, in relation to the templates. These drawings established the canopy geometry.
Installers followed the model to lay out, cut and fit each stud with precision. The finished canopy matched the 3D model exactly. The team could not have achieved the canopy’s unique geometry without 3D modeling.
Manufacturing Complexity
Were the materials custom made or were they modified standard pieces?
The team ordered standard CFS stud profiles and thicknesses. The steel structure was built on-site. The fabricator created templates from CAD files and laser-cut them to match scanned locations of steel outriggers and the concrete structure.

East elevation detail shows template layout used to define planar regions and guide the placement of the cold-formed steel (CFS) framing system.
Overall Job Quality
How did the completed system perform in alignment, finish, and overall design intent?
The team re-evaluated the canopy installation after placing the steel backbone and ribs. Metal panels allowed a 10 mm tolerance, and crews achieved 2 to 6 mm in the field.
Even though the canopy lacked a defined gridline reference, the team maintained tight control over its execution. In the end, the canopy’s high level of accuracy reflects strong installation practices and quality workmanship.
Maxan Interior Systems received the 2025 SFIA Industry Project and Product Honorable Mention in the Architectural Design Detail category for the Westerly 2, South Tower canopy.
Westerly 2, South Tower, Canopy
Etobicoke, Ontario
Details: 3,100 square feet (canopy), 7.74 tons cold-formed steel (CFS) framing products
PEOPLE
Owner
Tridel CorporationArchitect
Kirkor ArchitectsGeneral Contractor
Tridel CorporationEngineering Firm
Jablonski, AST & PartnersCFS System Partners
DASS Metal Products
MTE Consulting Engineers
Maxan Interior Systems
SFIA Industry Project and Product Awards
The 2025 SFIA Industry Project and Product Awards focus on cold-formed steel (CFS) manufacturing and construction. A panel of industry representatives judged all 2025 SFIA Awards entries based on the following criteria:
- Design Quality, such as the efficient and sustainable use of CFS products
- Installation Complexity, focusing on conflict resolution, timeframe challenges, etc.
- Manufacturing Complexity, including custom orders, panelization, special material sourcing and more
- Overall Job Quality, including the quality of alignments, finishes and other attention to detail
- Conversion from Alternative Framing Material, reflecting how steel framing lowered a structure’s weight, or added stories, or helped lower the project’s builders’ risk insurance, etc.
![]()
About SFIA
The Steel Framing Industry Association (SFIA), a unique organization representing steel mills, coil coaters, stud and connector manufacturers, component fabricators, Cold-Formed Steel Engineers Institute (CFSEI) members, suppliers/distributors, contractors and others, provides members with exclusive access to technical cold-formed steel (CFS) framing services, including CFS certification, environmental product declarations, market data and analysis, technical design guides, specification review services, architectural services, the Steel Framing Learning Portal, the SFIA Awards and more. SFIA is an accredited ANSI Standards Development Organization. Follow SFIA on LinkedIn, Facebook, Instagram and X.
Additional Resources
- The Steel Framing Industry Association (SFIA) Names 13 Recipients of the 2025 Industry Awards
- SFIA Unveils 9 Winners of the 2024 Industry Project Awards
- SFIA Reveals 7 Winners of the 2023 Industry Project Awards in Online Ceremony



