The curved cold-formed steel (CFS) ceiling and wall panels for Project Blue — the structural steel framework of beams and bar joists in the lobby at Fontainebleau Las Vegas, Las Vegas, Nevada.
The design centers on a series of doubly curved, prefabricated CFS ceiling panels that form interlocking “clouds” throughout the Fontainebleau lobby. Fabricators assembled each ceiling panel offsite. They installed the panels needing only a few connections. Prefabrication enabled the design team to achieve continuous fluidity in the ceiling’s shapes. The precision reduced field labor and ensured an installation with precise geometry.
Specialty engineering firm McClure designed the casino lobby’s CFS ceiling and wall panels with the assistance of Radius Track. McClure won Second Place—Commercial in the 2025 CFSEI Design Excellence Awards. The Cold-Formed Steel Engineers Institute (CFSEI) presented the awards. Lauren Gutknecht of McClure submitted the entry.
Featured image: The curved cold-formed steel ceiling assembly at Fontainebleau Las Vegas. Profile courtesy of CFSEI. Photos courtesy of Radius Track.

The ceiling in the lobby at Fontainebleau Las Vegas features a series of doubly curved cold-formed steel (CFS) ceiling panels.
Curved Cold-Formed Steel Ceiling
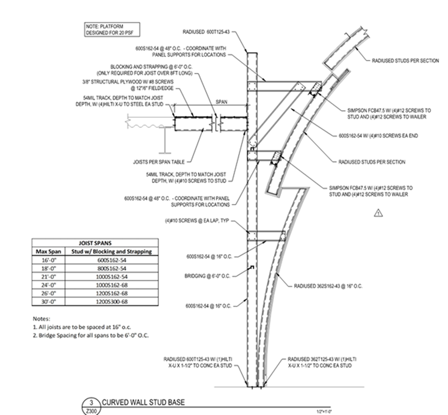
McClure designed the Fontainebleau lobby ceiling as an overlapping series of “leaf” panels. Each panel contained raised ribs spaced at 16 inches on center.
The design team engineered the ribs from custom crimped radiused studs. They based the design on testing and detailed calculations of the behavior of crimped members. A pair of radiused wailers support the ribs, which hang from the overhead structural system. The panels’ perimeter framing tapers to widths as narrow as 1⅝ inches, accommodating overlaps between panels while maintaining a sleek profile.
Additional challenges arose around incorporating diffusers into the lower edges of the panels. To integrate air distribution seamlessly, the design required doubly curved openings with specialized headers and jambs.
Seismic Considerations
The project’s seismic design category placed requirements on the design of the interior ceiling system. Diagonal bracing was necessary within each panel to provide independent stability. Lower-tier ceiling levels were supported by either ground-based framing or trussing against adjacent walls, which limited the number of overhead hangers.
The designers integrated a movement joint within the ceiling’s lighting alcoves. This ensured they remained visually minimal. These low walls often did not have adequate structure behind them for attachment, requiring joists up to 30ft long to reach back to adjacent structures for lateral support.

The lobby ceiling design was an overlapping series of “leaf” panels, each containing raised ribs spaced at 16 inches on center.
Design Adaptations
After fabrication and shipment, the building’s ownership elected to add recessed lighting alcoves that cut across multiple ceiling panels. This late-stage change required a detailed notching plan so that the newly introduced light alcoves could be partially inserted into the assembled stud framing on site. The retrofit was prefabricated and sent to the jobsite. There it was cut into the project while retaining the structural capacity of the panels.
CFS Can Be Visually Striking
Project Blue Lobby demonstrates how CFS can be used to create visually striking, highly customized interior elements. From the doubly curved prefabricated ceiling clouds to the hidden movement joints and last-minute design changes, this project highlights the adaptability of CFS systems in complex, high-seismic environments. The resulting lobby not only meets demanding structural criteria, but also delivers a dynamic and modern interior aesthetic for Las Vegas’s newest casino attraction.
Read the complete story about the cold-formed steel (CFS) non-bearing panels and obtain the complete design diagrams for McClure’s 2025 CFSEI Design Excellence — Second Place — Commercial here.
Project Blue – Fontainebleau Las Vegas Lobby
Second Place – 2025 CFSEI Design Excellence Award, Commercial category
Winner: McClureJosh Garton (center) of McClure accepts the CFSEI Design Excellence Second Place award, Commercial category.
Project
Project Blue – Fontainebleau Las Vegas Lobby
2777 Las Vegas Boulevard
Las Vegas, Nevada 89109Completion Date
2024People
Owner
Fontainebleau DevelopmentArchitect of Record
Bergman Walls and AssociatesEngineer of Record for Structural Work
John A. Martin & AssociatesCold-Formed Steel Specialty Engineer
Josh Garton, P.E., S.E., McClureCold-Formed Steel Specialty Contractor
Jeff Montague, Radius Track
Additional Resources
- eBook: Specifying Cold-Formed Steel Framing: A Guide for Architects and Engineers
- Insights and Inspiration Take Center Stage at 2025 CFSEI Expo in Raleigh
- SFIA Reveals 7 Winners of the 2023 Industry Project Awards in Online Ceremony
- McClure wins CFSEI Award for Balcony Design at Titletown Residential Project Near Green Bay





