Featured image: The steel framing layout (with grayed-in balcony) designed by McClure for Titletown residential project in Ashwaubenon, Wisconsin. Project profile courtesy of CFSEI. Photos courtesy of McClure, except where noted.
The Titletown multi-family residential building is located in Ashwaubenon, Wisconsin, near Green Bay. As the name implies, Titletown is associated with the home of the Green Bay Packers, the historically successful National Football League team.
The view of Lambeau Field is uninterrupted when peering from the east side of the new structure. The project consists of a six-story cold-formed steel (CFS) framed building above a single-story podium. The typical floor construction is gypcrete over CFS open web joists spanning from demising wall to demising wall. The structural lateral system on the project is CFS strap-braced shear walls and the building exterior consists of balconies that stagger in 32-ft. bays up the building.
McClure was engaged for its expertise and to develop a system that would frame the exterior balconies without significantly changing the residential layout or exterior appearance of the building.

Dana Hennis (left), P.E., S.E. and CFSEI vice chair presents the CFSEI award to Jesse Barnes of McClure.
McClure won the 2023 CFSEI Design Excellence Award for the project, taking second place in the multi-family residential category in the Cold-Formed Steel Engineers Institute (CFSEI)’s award competition.
The CFSEI Award entry was submitted by Lauren Gutknecht of McClure. Jesse Barnes accepted the award on behalf of McClure for the Titletown project at the 2023 CFSEI Expo held recently in New Orleans.
Jigsaw Appearance of the Balconies
The balconies at Titletown immediately draw attention and become a topic for conversation.
Because of the demising-wall-to-demising-wall-bearing layout, the balconies had to cantilever off the structure perpendicular to the floor framing. When McClure was first brought into the project, the design team and contractors were already aware of the non-stacking architectural layout of the structure and the challenges created by the balcony framing.
The design team quickly turned to McClure’s expertise to develop a system that would frame the balconies without significant changes to the residential layout or exterior appearance of the building. The balcony layout had a jigsaw appearance where almost nothing stacked from floor to floor.
The detailing quickly proved to be a complicated puzzle as well.
After several iterations, McClure determined the original concept of cantilevering the balconies was not going to work without some additional interior girders and carry beams.
- The plans only provided a few specific locations where posts could be added to support the framing and stack all the way up the building
- The residential wall layouts only overlapped at some specific locations
- The framing had to be turned in more than one direction to make everything work out
Brick Cladding Challenge
Another wrench in the works was the brick cladding. The brick support had to be framed from the cantilevered elements along with everything else. This added one more part of the gravity loading that had to be carefully considered in the design of each element.
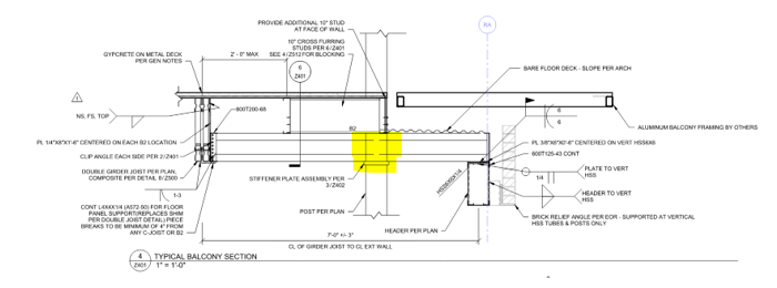
To satisfy all of the often-competing design requirements, McClure utilized a cantilevered CFS member that could simultaneously support the balconies, brick and exterior walls, while also fitting within the tight dimensional constraints of the floor/ceiling assembly. The member is termed “B2” in the final detail.

Final balcony framing detail for Titletown residential project. “B2” represents the custom CFS beam.
The resulting element was constructed using two studs and four tracks, all of which were custom roll-formed to produce a member with a cross-sectional profile of 8” tall by 4-7/8” wide.
‘B2’ Beam Added
B2 beam attached to girder joists on one end, cantilevered over the CFS posts, and supported the system of headers and brick relief at the exterior wall. Because it was made of CFS elements, web crippling was a significant design issue. To overcome this, the B2 beams run through the posts by means of a stiffener assembly to transfer the post load around the B2 beams.
To provide room for the aluminum balcony framing and drainage system, the B2 beams and C-joists were dropped to be flush with the bottom of the joists.
However, the floor deck still needed to be supported. Therefore, 10” cross furring was added. These members are framed perpendicular to the dropped 8” framing and parallel to the typical floor joists which allowed the deck to be laid continuously without switching directions.

The cantilevered balcony support was framed perpendicular to the dropped 8” framing and parallel to the typical floor joists, which allowed the deck to be laid continuously without switching directions.

This figure shows a snip from RISA 3D for a single controlling balcony stack. Forces were taken from the 3D model and used to make calculations of the beam stiffener detail.
Inconsistent Load Path Called for Modeling
Because of the non-stacking and inconsistent load path, all of the balconies required full modeling. RISA 3D modeling design software was used to determine the flow of forces and design of the post and beam elements supporting the structure from floor to floor. Each balcony had to be carefully analyzed due to the uniqueness of each location around the building exterior.

The above figure shows a rendering from the Revit model for one specific balcony location with the beam stiffener plate detail highlighted.
To get all elements properly detailed and shown on the contract documents, Revit was required to properly detail and locate each specific element of the balcony framing. McClure provided a rendering from the Revit model as a visual example for the typical balcony framing conditions.
Read more about McClure’s CFS detailing for Titletown Multi-Family Residential in Ashwaubenon, Wisconsin here.
Titletown Multi-Family Residential
1170 Brookwood Drive
Ashwaubenon, WI 54304Completion Date:
2022PEOPLE
Owner:
Sterling Project Development/Kaufman DevelopmentArchitect of Record:
Mike Domek, AIA, LEED AP, NBBJEngineer of Record for Structural Work:
Jeffrey Derra, P.E., S.E., LEED AP, R.A. Smith, Inc.Cold-Formed Steel Specialty Engineer:
Jesse Barnes, P.E., McClureCold-Formed Steel Specialty Contractor:
Travis Goddard, Eisen Group and Don Guskey, Denk and Roche
Additional Resources
- Curved Cold-Formed Steel Framing at All Saints Orthodox Church in Albuquerque Earns CFSEI Award for McClure
- McClure Takes Top CFSEI ‘Residential/Hospitality’ Award for Triangle Square Project
- McClure Wins CFSEI Award for Church’s Multiple Cold-Formed Steel Domes


