The Bolt is the first dedicated NFL team training facility and headquarters constructed in Los Angeles. It features a striking design that reflects the spirit of the Los Angeles Chargers. The facility takes its name from the team’s iconic lightning bolt logo, symbolizing innovation, energy and agility. The Bolt spans 150,000 square feet across a thoughtfully planned, three-level layout on 14 acres.
The training facility houses three full-size natural grass practice fields. It supports a wide range of essential team functions, including athletic training, medical support, team meetings and player amenities. Every element is designed to enhance performance and collaboration.
Lochsa Engineering, LLC, designed and detailed a complex cold-formed steel (CFS) front entrance wall and the Bolt Peak feature. The design team coordinated tapered planes, nonstandard connections and strict seismic and load requirements. They used BIM and engineering software to manage the complex detailing. For this work, Lochsa Engineering won Third Place, Municipal category, in the 2025 CFSEI Design Excellence Awards. The Cold-Formed Steel Engineers Institute (CFSEI) presented the award. Nick Hrico, P.E., of Lochsa Engineering submitted the entry.
Featured image: The cold-formed steel (CFS) framed front entrance of The Bolt in El Segundo, California. Profile courtesy of CFSEI. Images courtesy of LA Chargers.

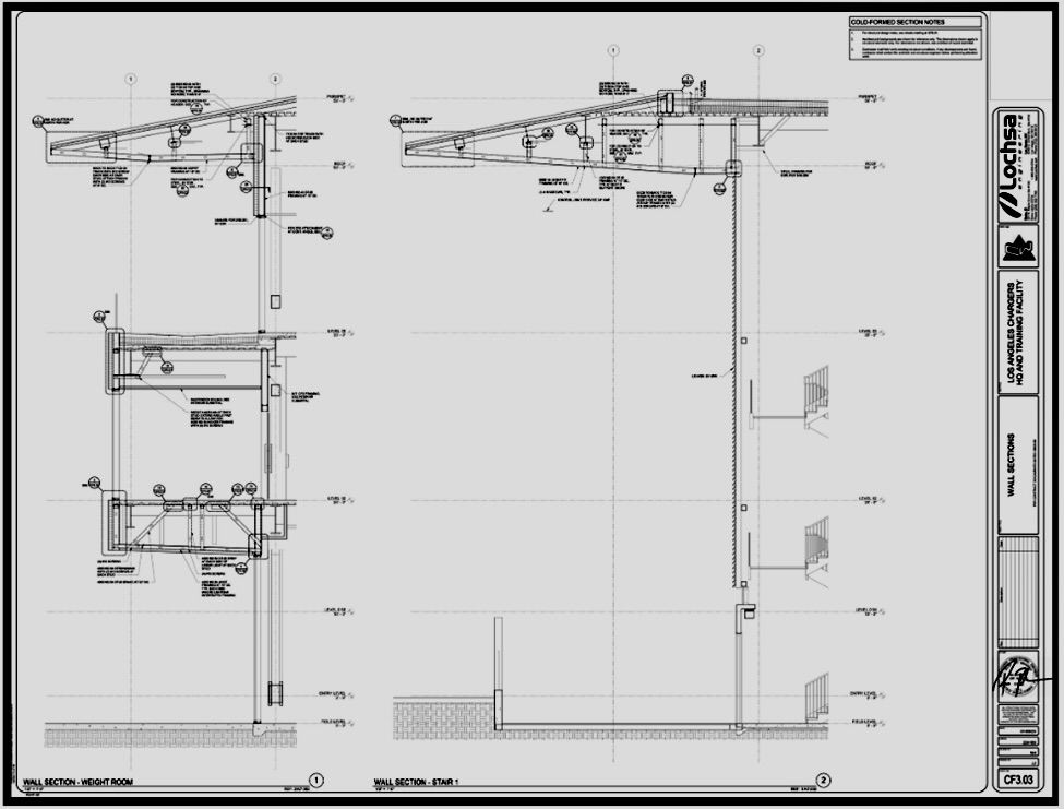
Lochsa Engineering detailed the cold-formed steel (CFS) wall assembly to manage vertical and lateral loads, integrating angled members and connections to support the sloped architectural profile.

The dramatic overhang and tapered facade of The Bolt training facility rely on a complex cold-formed steel (CFS) framing system tied into the red-iron structure to resist wind uplift.
NFL Team Training Facility + CFS
The ground floor of The Bolt includes dedicated training and medical spaces, a spacious locker room and an equipment room. Amenities on this level include lounges, hydrotherapy and recovery rooms, a sauna, steam room and barber area.
The second floor features meeting rooms, a turf walk-through space on the balcony and a two-story team meeting room. Culinary services, led by Wolfgang Puck Catering, also operate on this level and include a tile mosaic, Chargers-helmet-inspired pizza oven.
The top floor of the NFL team training facility offers a private club with a wrap-around outdoor balcony, lounge and private dining room. Executive and staff offices, conference rooms and content creation hubs also occupy this level.
The Bolt serves as a premier space for professional sports and entertainment. Its exceptional design and advanced technology make it a versatile venue for events. The facility reinforces its role as a central hub for both the Chargers and the greater Los Angeles community.

Lochsa engineers coordinated cold-formed steel (CFS) framing with architectural elevations to support large spans, stepped interior transitions and nonstandard intersecting planes.

The multi-story LED wall required concealed cold-formed steel (CFS) supports designed to align with sloped and vertical planes, stair framing, skylights and architectural sight lines.
Design Challenges and Solutions
“Bolt Peak” Front Entrance Wall
The intricate CFS front entrance wall tapers vertically in two planes and connects directly to the base structure framing. Designers had to account for vertical and horizontal code loads, as well as building drift compliance, at three distinct bearing elevations along the building’s elevation.
Integrated within these wall planes is the Bolt Peak, which protrudes at a consistent elevation at the top while the bottom portion tapers to a point independent of the walls behind it. To create this element, the team connected CFS framing members to the base steel (red iron) structure using a system of vertical, diagonal and cantilevered CFS members and connections. Strict attention to detail, along with the use of a building information model (BIM) and structural engineering software (Ram Elements), helped the team efficiently lay out the CFS framing grid and maintain alignment with the architectural elevations. They also coordinated with MEP trades to ensure a solid, seamless entry wall finish.
The CFS framing system for the large overhang required precise structural engineering and detailing. The team integrated the completed CFS assembly into the main building steel using tapering and angling members that departed from a standard 90-degree layout. At the same time, they addressed significant wind uplift and suction forces.

Lochsa engineered the auditorium’s cold-formed steel (CFS) ceiling and wall system to create continuous angular planes that deliver the LA Chargers’ lightning-bolt aesthetic while housing recessed lighting.

The auditorium shows the engineered cold-formed steel (CFS) ceiling grid, which uses vertical, angled and horizontal members to achieve the room’s undulating form.
Auditorium / Meeting Room Ceiling
This dynamic space serves as a major focal point for the team’s ownership, coaches and players. The environment needed to reflect the lightning bolt theme used throughout the building.
The final ceiling layout achieved this look with undulating vertical and horizontal planes throughout the space. CFS framing members and connections offered the best means to create the intended appearance. The ceiling pattern required vertical, angled and horizontal support members hidden within the meeting room lid. The team also had to account for recessed speaker systems and air diffusers.
Entry Lobby Wall with LED Board
Designing the wall system in this area posed a major challenge. All walls and related systems needed to incorporate the look of a lightning bolt and its sharp lines. The team developed CFS framing supports and connections for the geometric vertical, sloped and horizontal planes. This complex work was essential to achieving the architectural look and creating a lasting visual impression upon entry. All support members and connections had to remain discreet, with little to no visual impact on the finished product.
Structural challenges increased due to key architectural elements in the space, including the main stair with intermediate landing, a large LED board and a skylight. The team had to integrate each element precisely into the wall layout.
Project stakeholders collaborated closely to ensure the framing remained hidden while still providing full support. BIM and structural engineering software helped align the CFS framing grid with the architectural elevations. The detailing exceeded typical CFS shop drawings and required multiple elevations and sections to illustrate the layout. The team developed custom details beyond the standard CFS package. The CFS framing system also met all current code design loads and deflection and building drift criteria, which was critical since the NFL team training facility lies in a high seismic zone.

Cold-formed steel (CFS) framing supports the lobby’s expansive, cantilevered interior forms, enabling precise transitions between sloped walls, stairs and integrated LED surfaces.

Viewed from the training fields, the facility’s long-span exterior walls and overhangs are supported by a coordinated cold-formed steel (CFS) and structural steel system engineered to perform under seismic and wind demands.
Strict Architectural Requirements
Each design challenge came with strict architectural requirements. The CFS framing system also had to meet all current code design loads and deflection and building drift criteria, especially since the building stands in an extremely high seismic zone.
The design team succeeded by applying the versatility of CFS framing members and connections and by creating intricate framing grids with nonstandard connection scenarios. Proper engineering methodologies and rigorous detailing supported these solutions. Experience, a knowledgeable construction and design team and continued education through groups, such as the Cold-Formed Steel Engineers Institute, all contributed to the project’s success.
This remarkable project, skillfully executed by Lochsa Engineering, showcases the firm’s technical expertise and reinforces its leadership in the engineering community.
Read the complete story about the CFS systems used in The Bolt and obtain the design diagrams for Lochsa Engineering’s 2025 CFSEI Design Excellence — Third Place — Municipal win here.
LA Chargers HQ & Training Facility – “The Bolt”
Third Place, Municipal – 2025 CFSEI Design Excellence Awards
Winner: Lochsa EngineeringCaitlin DeRocher (center) of Lochsa Engineering accepts the CFSEI Design Excellence Third Place award, Municipal category presented by CFSEI’s Immediate Past Chair Dana Hennis and Chair Tammy Gleed.
Project
LA Chargers HQ & Training Facility – “The Bolt”
One Chargers Way
El Segundo, California 90245Completion Date
July 2024People
Owner
Los Angeles ChargersArchitect of Record
Steve Chen Chung, GenslerEngineer of Record for Structural Work
Whitney Lee, Walter P Moore and Associates, Inc.Cold-Formed Steel Specialty Engineer
Derrick Suarez, P.E., Lochsa Engineering, LLCCold-Formed Steel Specialty Contractor
Kiley Hough, Component West
Additional Resources
- Lochsa Engineering Takes Top 2024 CFSEI Design Excellence Award for The (W)rapper in L.A.
- Insights and Inspiration Take Center Stage at 2025 CFSEI Expo in Raleigh
- The Steel Framing Industry Association (SFIA) Names 13 Recipients of the 2025 Industry Awards
