Featured image: The Richmond Road Starbucks in Staten Island, N.Y., is framed entirely with cold-formed steel. Project profile courtesy of CFSEI. All photos courtesy of Super Stud Building Products. Shop drawings courtesy of R.A. Smith.
Starbucks, the largest coffeehouse chain in the world, operates over 30,000 locations in more than 70 countries. Starbucks is a roaster and retailer of whole bean coffee, ground coffee, tea and spices and a place for conversation and a sense of community. With over 300,000 employees, the company’s mission is “to inspire and nurture the human spirit – one person, one cup and one neighborhood at a time.”
The Lighthouse Hill neighborhood — a chain of hills that radiate from the northeast corner of Staten Island, New York — is the site of a new Starbucks coffeehouse. The free-standing building located at 1717 Richmond Road offers a drive-through window with convenient ingress and egress. The configuration is adaptable to a variety of alternative uses.
The Richmond Road Starbucks is an 1,875-square-foot, single-story, load-bearing cold-formed steel (CFS) structure on a cast-in-place concrete foundation.
- The exterior steel stud walls are primarily sheathed with a hard-coat stucco exterior insulation finish system over DensGlass®, with some accents of 6-inch solid cedar shiplap planks
- The roof consists of an EPDM system over corrugated metal deck supported by SuperMaxx® joists
- An additional amenity includes CFS-framed canopies over the drive-through and storefront entrance areas

Dana Hennis (left), P.E., S.E. and CFSEI vice chair presents the CFSEI award to Alyssa Pease of R.A. Smith, Inc.
SFIA member R.A. Smith, Inc. won the 2023 CFSEI Design Excellence Award for the project, taking second place in the commercial category in the Cold-Formed Steel Engineers Institute (CFSEI)’s annual award competition.
The CFSEI Award entry was submitted by Alyssa Pease of R.A. Smith. Pease accepted the award on behalf of R.A. Smith for the project at the 2023 CFSEI Expo held recently in New Orleans.
Load-Bearing CFS with Multiple Features
To the untrained eye, the Richmond Road Starbucks may appear to be a simple structure. It’s a single-story, 1,875-square-foot rectangular-shaped building with storefront protruding canopies and an area on the roof utilizing a screen wall. However, making these features work together successfully in a load-bearing CFS structure required creative engineering.
SFIA member Super Stud Building Products was responsible for providing all CFS framing members and brought R.A. Smith, Inc. into the project for the firm’s CFS design expertise.

The CFS framing design of the east side of the building had to support the roof and a bump-out in the structure with a canopy.
The primary design challenges for the project included:
- 3½-foot-tall perimeter parapet walls
- 8½-foot-tall mechanical screen walls
- a 28-foot simple span roof framing
- storefront openings with cantilevering canopies
- shear wall design
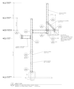
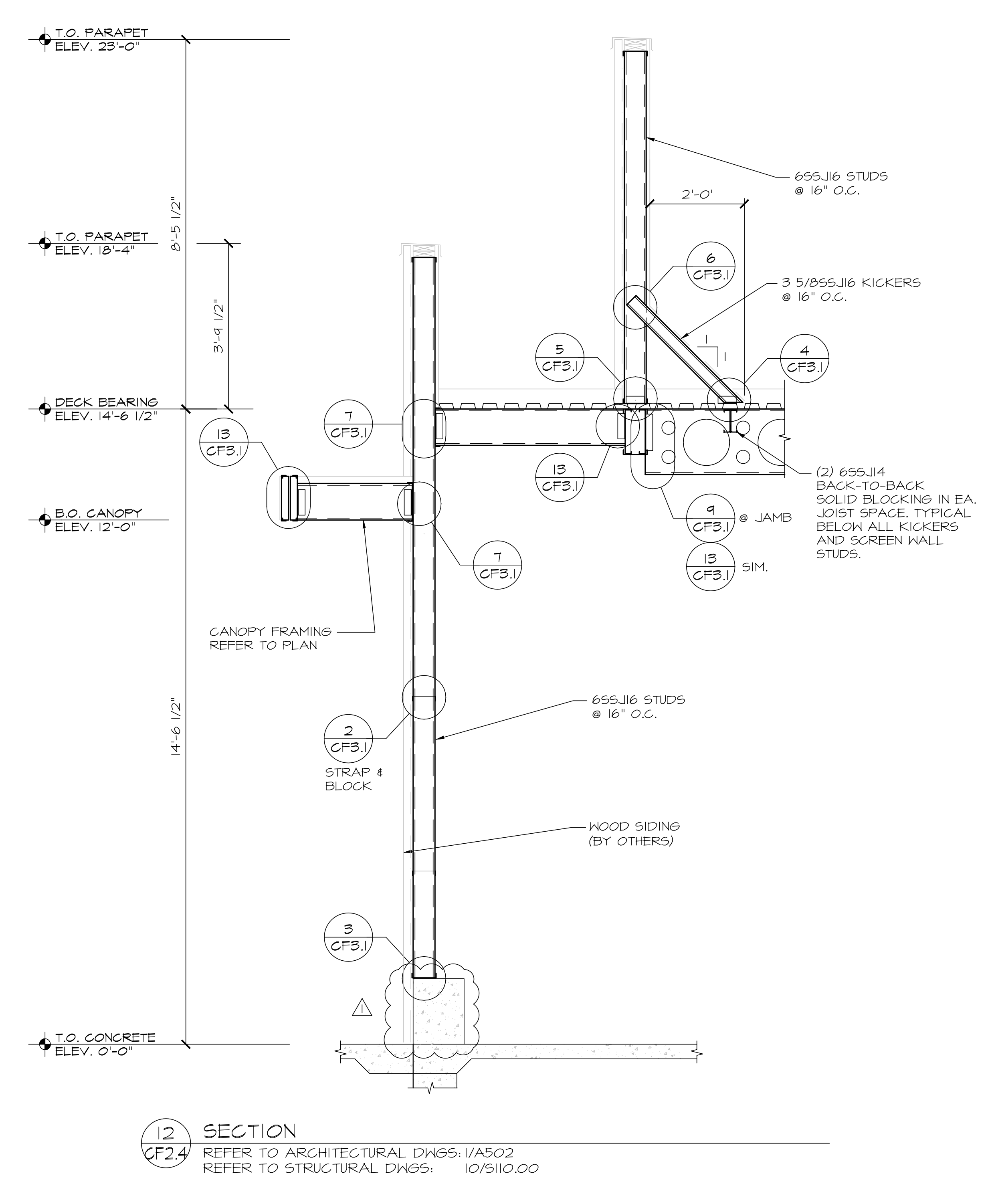
The east side of the building brought many of these design challenges together. The framing supports not only the roof, but also a bump-out in the structure with a canopy that cantilevers off the bump-out and main structure.
The canopy structure is a large header off the end that is supported at three locations across the bump-out. On the north side, the header supporting the canopy cantilevers off the final support outrigger. This design achieved the architectural feature of a canopy that appears to effortlessly continue across the building regardless of the support structure below it.

Cold-formed steel (CFS) members for the Richmond Road Starbucks were provided by SFIA member Super Stud Building Products.
Mechanical Screen Wall Challenge
The mechanical screen wall presented its own challenge due to height, wind load and support structure. There was no structural steel provided to support this wall; therefore, framing was designed to span between joists to distribute the load from the screen wall above. These connections proved difficult due to the fasteners having to pass through clips, metal deck, and then align to go into the cold-formed blocking below. To ensure there was no deck crushing, wood blocking was recommended in areas where this connection occurred.
Interesting Shear Walls
The shear walls on this job were interesting to design. With all of the canopies and openings, the design team had to find wall locations large enough to support the lateral forces. In the end, three of the structure’s corners presented enough space for the team to utilize X-braced straps.

The Richmond Road Starbucks may appear simple, but integrating the openings, canopies, screen walls and other features required creative engineering.
Here are details related to the canopy, screen wall and shear walls at the Richmond Road Starbucks in Staten Island, New York:
- Details of note at canopy; 14,21,22,31/CF3.2
- Sections of note at canopy; 3/CF2.1, 5,7/CF2.2
- Details of note at screen wall; 4,5/CF3.1
- Sections of note at screen wall; 6/CF2.2
- Details of note at shear walls; 28,29/CF3.2
- Sections of note at shear walls; 15/CF2.4
Read the complete Richmond Road Starbucks design story and get the project shop drawings here.
Richmond Road Starbucks
1717 Richmond Road
Staten Island, NY 10021Completion Date:
Fall 2022PEOPLE
Owner:
StarbucksArchitect of Record:
Gambino & LaPorta Architecture, PCCold-Formed Steel Specialty Engineer:
Alyssa Pease, R.A. Smith, Inc.Cold-Formed Steel Specialty Contractor:
Don Allen, Super Stud Building Products, Inc.
Additional Resources
- CFS-Framed Pods Engineered by R.A. Smith for Advocate Aurora Health Wins CFSEI Design Award
- R.A. Smith Wins CFSEI Design Excellence Award for Office Building at Ovation
- R.A. Smith’s Alyssa Walker Named Young Civil Engineer of the Year
- SFIA’s Pat Ford Receives Distinguished John P. Matsen Award from CFSEI


