Featured image: The cold-formed steel (CFS) wall panels at May West Tower are 24″ thick and 24′ x 15′ in size. Project profile courtesy of CFSEI. All photos courtesy of Digital Building Components.
Mayo West Tower, Phoenix, Arizona, is a seven-story structure (concourse plus six floors above grade). It features approximately 140,000 square feet of pre-finished exterior cold-formed steel (CFS) non-load bearing wall panels.
The building is an addition increasing the capacity of the existing hospital. It includes an emergency department, laboratory medicine, intensive care, medical-surgical beds, observation beds, apheresis, ambulatory infusion center, dialysis and radiology.

Dana Hennis (left), P.E., S.E. and CFSEI vice chair presents the award to Venkata Charan, P.E., Digital Building Components, as Kara Peterman, Ph.D., CFSEI chair looks on.
The Mayo West Tower is concrete over metal deck with steel moment frames and pre-finished exterior CFS non-load bearing wall panels encompassing the structure.
Digital Building Components (DBC) based in Phoenix is the 2023 CFSEI Design Excellence Award winner for the project, taking second place in the municipal/services category in the Cold-Formed Steel Engineers Institute’s award competition.
The CFSEI Award entry was submitted by Venkata Charan, P.E., of Digital Building Components. Venkata Charan, P.E., Digital Building Components accepted the award for the Mayo West Tower project at the 2023 CFSEI Expo held recently in New Orleans.
Unique CFS Panel Thicknesses
What sets the Mayo West Tower apart from other exterior projects is the building’s exterior panel size. The walls are 24″ thick with a 6″ exterior insulation finish system (EIFS) over 6″ J girts placed over 12″ CFS studs.

Digital Building Components fabricated 1,500 cold-formed steel (CFS) wall panels for Mayo West Tower.
DBC fabricated around 1,500 wall panels pre-finished with windows preinstalled. The sizes of the panels are approximately 24′ by 15′ and are 24″ thick. But some panel thicknesses narrow to 4” around window openings.
During the Mayo West Tower project’s inception phase, DBC’s design team considered different ideas to fabricate 24″-thick pre-finished walls, 24’ in length with preinstalled windows. The team decided to use 12″ studs as the first layer wall. Then, the DBC team placed the 6″ J girts horizontally. The J girts act as bracing for the long panels, which proved to be an important feature during their shipping and hoisting.
However, the DBC team realized that for hoisting there was an issue with transitioning from a 24″-thick wall to a 6″-wall. The architect did not want a panel joint separating them, so DBC and Pangolin Structural together devised the solution of fabricating them as separate panels and connecting them with welds. Doing so would hold each panel in place for lifting.
24” to 4” Thick Transitioning
Another challenge involved the transition from a 24″-thick wall panel to a 4″-thick wall occurring within a window opening. DBC and Pangolin came up with the idea of extending the header within the 12″ studs and adding 2-1/2″ studs as infill studs to make up that transition. This enabled us to efficiently reduce the gauge of the 2-1/2″ studs, saving money for the client.
Another unique feature about Mayo West Tower panels is their sloped window sills. DBC and Pangolin designed the panels to keep the traditional window sills with a 12″ track. But, the teams tweaked the design by adding an angled bent plate with 2-1/2″ CFS studs to create the sloped sills.
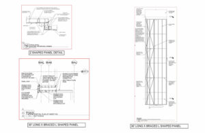
“L” and “Z” Shaped Panels
Several panels in the project are not simple rectangular wall panels. Instead, they are “L” shaped and “Z” shaped around the corners.
For example, one of the walls is around 30′ long and is only 6′ wide and has an “L” shaped corner that extends 3′ out from the main panel. DBC and Pangolin came up with the idea of creating boxed studs at the end and using CFS straps as “X” bracing to increase the stiffness of the connection between the main panel and sub panel.
The most difficult part with these “L” panels is they needed to be connected to a thin strip of slab 12″ wide that extends 7′ from the main building. DBC and Pangolin’s solution was to bypass these panels by two floors and stack them together. This made installation of the panels less difficult.
Designing Panels at Parapet
Designing walls at parapet was another unique aspect of the project. The parapet walls needed a panel splice within the main wall to account for future vertical expansion of the hospital. DBC designed the parapet to be stitched with screws to the lower panel for future removal.
Mayo West Tower
5777 E. Mayo Blvd
Phoenix, AZ 85054Completion Date
December 2022 (Dry In)Construction Cost
$41 millionPEOPLE
Owner:
Mayo ClinicArchitect of Record:
Ray Smith, HKS, Inc.Engineer of Record for Structural Work:
Christa Chau, PK AssociatesCold-Formed Steel Specialty Engineer:
Tony Polusny, P.E., Pangolin Structural and Casey Quackenbush, Pangolin StructuralCold-Formed Steel Specialty Contractor:
Travis McCoy, P.E., S.E., LEED AP, Digital Building Components and Venkata Charan, P.E., Digital Building Components
Additional Resources
- New Research Helps Engineers, Architects Tally Cold-Formed Steel Load Buckling Stress
- Cold-Formed Steel Engineers Institute to Hold the 2024 CFSEI Expo in Tucson, Arizona (May 20-22, 2024)
- Steel Framing Industry Offers 4 Tools to Help Reduce Construction’s Carbon Footprint




