All photos courtesy of Salas O’Brien.
For Denver International Airport’s Concourse B East and C East Expansions, Salas O’Brien delivered exterior engineering, panelization design assistance and coordination services. The engineering and technical services firm also developed interior non-structural cold-formed steel (CFS) engineering and BIM services for the project.
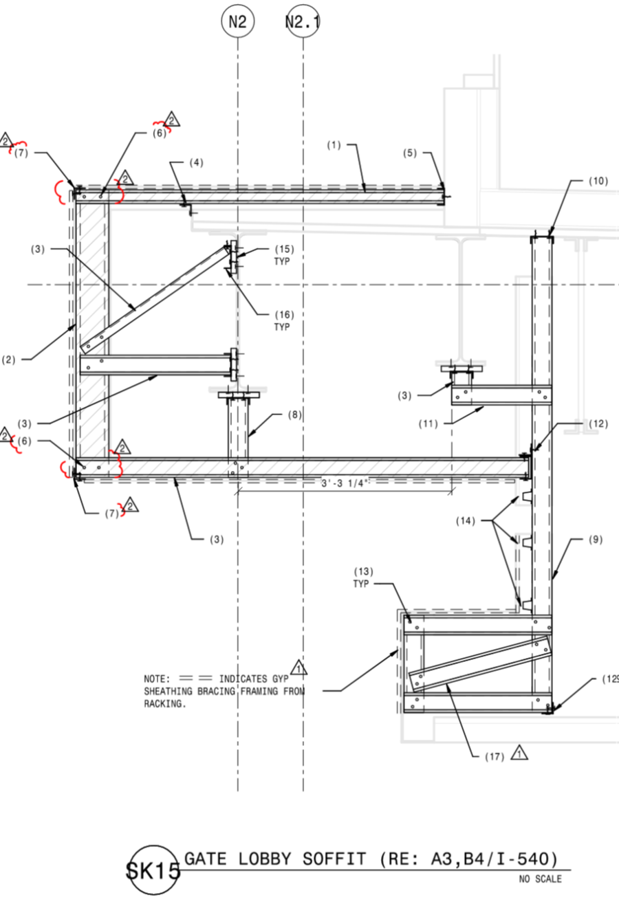
Steve Chambers, Four Star Drywall, was the CFS specialty contractor for the project. Jacobs was the engineer or record for the structural work.
The project received the Design Excellence — Honorable Mention in the 2024 CFSEI Awards presented by the Cold-Formed Steel Engineers Institute (CFSEI).

The Denver International Airport’s Concourse B East and C East Expansions are built on drilled pier foundations with structural steel superstructures and feature a mix of metal panel spandrel framing above and below the curtain wall.
Steel Drives $1B Expansion Project
The Denver International Airport is of one of the world’s busiest airports and a hub for air travel across the U.S. and abroad.
Denver launched a major expansion project to enlarge two of its three concourses, adding 126,000 square feet to Concourse B and 530,000 square feet to Concourse C, with estimated construction costs of $209 million and $878 million, respectively.
The Concourse structures are built on drilled pier foundations and have structural steel superstructures. The exterior of the buildings is a mix of metal panel spandrel framing above and below the curtain wall.

Salas O’Brien delivered exterior engineering, panelization design assist, coordination services, as well as interior non-structural CFS engineering and BIM services for the expansion project.
Engineering Challenges
Salas O’Brien provided exterior engineering and panelization design assist and coordination services. Salas O’Brien also provided interior non-structural CFS engineering and BIM services for this expansion.
Notable CFS engineering challenges included:
- Creating an exterior hybrid panelized system
- Engineering large exterior ceilings and soffits under a concourse bridge and around the apron
- Overall quantity of unique framing conditions throughout the interior and exterior of the expansion
The exterior panelization presented unique detailing and subsequent engineering challenges. The spandrel panels above the glazing may look standard from afar and in photos, but they were coordinated to integrate previously designed and detailed supplementary steel within the assemblies.
CFS/Steel Hybrid Panel Facade Solution
During initial coordination, the project team requested a prefabricated facade solution. The original design did not account for this, and structural steel detailing created several penetrations and interruptions that would not allow an efficient panel solution.
Additionally, CFS framing needed to be kept away from critical connection locations to allow field welding of the steel. These “no-fly” zones were typically the standard CFS anchorage locations to the steel. So, modified connection detailing was required.
To address this challenge, Salas O’Brien created hybrid panels, coordinating the structural steel within the CFS panels to allow reasonable panel sizes and execution. They were specifically detailed to work around and with the structural steel, such as posts, beams, knife plates and ledgers.
The resulting exterior panel system consists of a wide variety of CFS and CFS/steel hybrid panels.
Specialty Connections and Panelization to Streamline Enclosure
The roof steel could not be placed within the parapet panels, requiring specialty connections and panel configurations to work around the steel while allowing tolerance of the other trade’s installation.
Additionally, a large cornice plate supplied by another trade needed to be coordinated and integrated into the parapet panelization. The cornice steel was long, enabling Salas O’Brien to develop a panel-to-panel connection that allowed for its expansion without damaging the framing.
The successful execution of this system minimized the CFS trade’s envelope impact on airport operations and allowed faster enclosure. Our ability to coordinate with the design team and other trades to provide a prefabricated installation proved the CFS team to be an invaluable partner serving this project.
Adapting CFS to Complex Cladding Requirements
The exterior ceilings and soffits might have been simple if the chosen cladding system used standard sub girts to allow a typical CFS layout beneath to work. However, the sold product required exact anchorage points for the panels, which fell in expectedly difficult discrete locations to coordinate.
The design team required a CFS framed system with standard shapes and would not allow a proprietary hung support system to be substituted.
A CFS beam system with CFS angle struts was designed to work with the restrictive cladding system’s clip and spacing requirements. Anchorage to the floor slab above was not allowed, so all beams had to coordinate between steel anchorage locations.

This plan view illustrates the amount of required span direction changes and special detail conditions at the drive thru ceiling.

The design needed flexibility to work for the exact anchorage locations in the field and allow easy adjustment when necessary.

Although the SER did not want any anchorage into the floor slab above, some edge detailing required it nonetheless.
The remaining CFS design and detailing of exterior and interior portions of the expansion are difficult to envelope into single topics for discussion. But there were large amounts of miscellaneous locations where CFS framing was required to finalize incomplete design to configurations that did not work as detailed by the design team.
A temporary opening was required to also function as a sliding door. Salas O’Brien designed a CFS temporary exterior wall that also acted as a sliding door.
Steel Framing Key to Expansion Success
Large public projects at operational facilities require the flexibility and dynamic nature of CFS framing and off-site construction to turn the architect’s vision into reality while meeting code and schedule requirements.
The DIA Concourse Expansion project exemplifies CFS framing’s necessity and key role in bringing this vision to 100% completion.
Read the complete story for Salas O’Brien’s 2024 CFSEI Design Excellence Award here.
Denver International Airport Concourse B East and C East Expansions
Honorable Mention – 2024 CFSEI Design Excellence Award
Winner: Salas O’Brien
Project
Denver International Airport Concourse B East and C East Expansions
9100 Pena Blvd
Denver, CO 80249
Completion Date
2022Cost
$3.8 billionPeople
Owner
City and County of DenverArchitect of Record
JacobsEngineer of Record for Structural Work
JacobsCold-Formed Steel Specialty Engineer
Russ Leffler, Salas O’BrienCold-Formed Steel Specialty Contractor
Steve Chambers, Four Star Drywall
Additional Resources





