Steel Framing Industry Association (SFIA) member raSmith leveraged cold-formed steel (CFS) to build The Trade Milwaukee in Wisconsin.
This project was designed to accommodate varying floor-to-floor heights, including extra-tall levels for professional athletes. Each level was engineered to optimize material use and structural performance. Where possible, structural steel was avoided in favor of CFS. The design team communicated efficiencies through approver notes.
Efficient Use of CFS Framing
raSmith received the 2025 SFIA Industry Project and Product Honorable Mention in the Mid-Rise category for The Trade Milwaukee. The SFIA Awards recognize excellence in the use of cold-formed steel (CFS) framing across design and construction.
Susan Dzibinski of raSmith submitted the award entry. BuildSteel previously featured The Trade Milwaukee project in a detailed case study on how CFS framing tackled custom window systems, stacked atrium spans and complex architectural detailing.
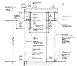
Featured image (above): raSmith designed the cold-formed steel (CFS) framing for The Trade Milwaukee.

The Trade Milwaukee demonstrates efficient use of CFS by tailoring the framing design to accommodate varying floor to floor heights.
raSmith’s win was announced during the 2025 SFIA Awards live ceremony and posted online. The SFIA 2025 Industry Project and Product Awards, an annual steel framing industry awards competition, focuses on CFS manufacturing and construction. Designers, manufacturers, distributors and contractors entered a variety of projects in the latest competition.
Design Quality
How did this project use CFS efficiently and what was the value engineering solution?
The Trade Milwaukee demonstrates efficient use of CFS by tailoring the framing design to accommodate varying floor to floor heights, including extra tall levels for professional athletes.
Each level was engineered to optimize material use and structural performance. Where possible, the team avoided structural steel in favor of CFS and communicated design efficiencies through approver notes.
At lower levels with greater spans, the team selected 8 inch and 12 inch studs in many cases to reduce required mil thickness while meeting strength demands.
Late in construction, the team identified that steel lintels had not been provided to support brickwork above first level openings. The team worked with the engineer of record to use already installed CFS studs to support the brick, eliminating the need for additional steel members and maintaining the project schedule and budget.

Second floor restaurant balcony framing with partial window openings and mullions, engineered to support future enclosure and exterior wind loads.

This view highlights detailed framing at partial window openings and mullions, designed to support future enclosure and resist exterior wind loads on both inner and outer frames.
Installation Complexity
Did this project require special methods or conflict resolution?
The installation required a high level of coordination and sequencing, particularly at the feature window openings.
The team uniquely framed each opening with interwoven CFS members to support a range of window sizes within a single area. This approach required precise load transfer to full width headers, sills and full height jambs.
The team also adapted to varying floor heights and integrated framing solutions that supported the architectural intent without compromising structural integrity.

Framing elevation view illustrating the interwoven cold-formed steel (CFS) members at feature window openings. This configuration was engineered to support multiple window sizes within a unified framed area, ensuring precise load transfer and structural continuity across the elevation.
Manufacturing Complexity
Were the materials custom made or were they modified standard pieces?
The team used standard CFS components throughout the project and strategically combined them to create custom profiles and shapes that met the architectural and structural requirements.
This approach allowed the design to remain flexible while maintaining cost and production efficiency.
Overall Job Quality
How did the completed system perform in alignment, finish, and overall design intent?
The completed framing system closely aligns with the architectural renderings and design documents. The team made some field modifications to address missing structural elements or deviations, and the final product fulfilled the design intent.
The result is a clean, well-aligned structure that meets both aesthetic and performance expectations.
raSmith is the 2025 SFIA Industry Project and Product Honorable Mention winner in the Mid-Rise CFS Framing category.
The Trade Milwaukee
Milwaukee, Wisconsin
Details: 175,000 square feet, featuring cold-formed steel (CFS) framing products, optimized for structural performance
PEOPLE
Owner
Milwaukee DD Lodging Investors, LLC, c/o North Central Group (Marriott)Architect
Gary Brink & Associates (GBA Architecture)General Contractor
J.H. Findorff & Son, Inc.Structural Engineer of Record
Pierce Engineers, Inc.CFS Specialty Engineer
raSmith
SFIA Industry Project and Product Awards
The 2025 SFIA Industry Project and Product Awards focus on cold-formed steel (CFS) manufacturing and construction. A panel of industry representatives judged all 2025 SFIA Awards entries based on the following criteria:
- Design Quality, such as the efficient and sustainable use of CFS products
- Installation Complexity, focusing on conflict resolution, timeframe challenges, etc.
- Manufacturing Complexity, including custom orders, panelization, special material sourcing and more
- Overall Job Quality, including the quality of alignments, finishes and other attention to detail
- Conversion from Alternative Framing Material, reflecting how steel framing lowered a structure’s weight, or added stories, or helped lower the project’s builders’ risk insurance, etc.
![]()
About SFIA
The Steel Framing Industry Association (SFIA), a unique organization representing steel mills, coil coaters, stud and connector manufacturers, component fabricators, Cold-Formed Steel Engineers Institute (CFSEI) members, suppliers/distributors, contractors and others, provides members with exclusive access to technical cold-formed steel (CFS) framing services, including CFS certification, environmental product declarations, market data and analysis, technical design guides, specification review services, architectural services, the Steel Framing Learning Portal, the SFIA Awards and more. SFIA is an accredited ANSI Standards Development Organization. Follow SFIA on LinkedIn, Facebook, Instagram and X.
Additional Resources
- The Steel Framing Industry Association (SFIA) Names 13 Recipients of the 2025 Industry Awards
- SFIA Unveils 9 Winners of the 2024 Industry Project Awards
- SFIA Reveals 7 Winners of the 2023 Industry Project Awards in Online Ceremony




