ADTEK Designs: Wagner College Locker Rooms

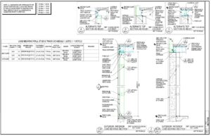
ADTEK Engineers earned the 2024 SFIA Award for Wagner College’s new locker rooms, a conversion from wood to steel framing, showcasing the strength, efficiency and light weight nature of cold-formed steel (CFS).
Fill out the form to download Wagner College locker room designs.